HP-pro

ミニマムMAX!驚異の圧送性能
平行摺動式バルブ搭載。徹底的に真っ直ぐ押し出すポンプです。
ホッパー形状は、理想の漏斗形(上部4角開口)。さらに、パドル付縦型スクリュー(オプション)により高粘度の材料や低比重の材料でも高い吸い込み効率が得られます。
淀みのない材料流れにより、固着物が無く、施工後の掃除が楽です。
また、エア吸込みの心配もありません。

Y字管やS字管(スイングバルブ)を使用せずに、一直線に吐出する圧送機構のため、他に類のない低吐出抵抗を実現しています。しかもピストン前面圧は、10.4MPa(106kgf/c㎡)と強力。湿式吹付工法に不可欠な低添加水分量の材料も圧送可能です。
吐出管口径は2インチなので、輸送配管経路にレデューサーやテーパー管を使用することなく施工が可能です。つまり、材料の性状変化が無いため、加圧時に脱水分離を起こしやすい材料でも、楽に圧送することができるのです。

実質6トン毎時の施工が可能。
※材料の比重や配管条件により異なる場合があります。
理論吐出量MAX3㎡/h。小さくても、やるときは、やります。
3つのECO
ECO1 軽量・コンパクト・オールインワン
・全長2,.350mm,全幅1,000mm,重量約1t。2tフォークリフトでラクラク移動。しかもクレーン吊用アイボルトを標準装備。ポンプシャーシ外枠からの突起物が無く、安全に移動できます。輸送時も2tトラックでストレス無く走行でき、抜群の機動力を誇ります。
・液状急結剤ポンプ等オプション品が全て機体内に納まるオールインワン設計です。
ECO2 クリーン・省エネ
・主動力はクリーンなモーター。電源は30AでOK。太いケーブルとはサヨナラ。どんな現場でも電源供給がラクです。
・蓄圧回路(油圧)により、高効率で脈動の少ない運転が可能。主動力10馬力のパワーを最大限に活かします。
ECO3 周囲にもオペレータにも静かで優しい
・ポンプ運転時の騒音が、環境基準値70db以下をクリア!!周囲にもオペレータにもストレスを与えません。
ポンプ周囲15m地点において(暗騒音35db時)。アイドリング時は、ポンプ真横でも68db!
究極のワーカビリティー
施工後の掃除が何より大変!そう感じた事はありませんか?


通常の清掃は、バルブを開くだけでOK
メンテナンスも簡単。
ほとんどの消耗部品の交換がこの状態で、現場で簡単に行えます。
バルブプレートは、消耗時反転することによって2倍長持ち。ランニングコストを軽減します。
予期しない材料の急激な硬化!
そんな時は、ホッパーを回転させて迅速に対応。
現場を汚さない!作業者を疲れさせない!!

・ミキサーが洗い終わるまで圧送ポンプの機体洗浄を待つ必要はありません。
・ミキサーの洗浄汚水は、ホッパーでキャッチ。現場を汚しません。
・その間圧送ポンプの機体洗浄は完了!
・後はゆっくり、適切な場所で残コンを処理して下さい。
・ホッパーだけ簡単に移動できるから、狭い場所でも作業性が良好!しかも、ホッパー内に突起物が一切ないから、材料が固化しても除去が楽です。
※施工前に離型剤を塗布しておけば、さらに効果的です。
フォークリフトだけでホッパーだけ簡単に移動できます。
ホッパーシャッター搭載


さらに使いやすく。充実のオプション
格納式アジテータ(材料攪拌装置)

液体急結剤ポンプ
ダイヤフラムポンプ、チューブポンプ、モーノポンプの3種類用意しております。
上記以外にも現場ニーズにお応えするオプションを用意しております。ご相談下さい。
仕様・性能
| MODEL | HP-pro |
| 形式 | 定置式・モータータイプ |
| 理論吐出量 | 0~3m3/h |
| 吐出量調整 | 手動フローコントロール |
| ピストン前面圧力,MAX | 10.4MPa(106kgf/c㎡) |
| 圧送可能最大骨材寸法 | 10mm ※1 |
| 吐出管口径 | 2B(50A)・S型 |
| ポンプ方式 | 油圧2ピストン式 |
| バルブ方式 | 平行摺動式油圧開閉バルブ |
| マテリアルシリンダー | 内径65mm×ストローク500mm |
| 動力 | 形式/全閉外扇形(屋外型)モ-ター 出力/11kw 電源電圧/3相・AC200V(50/60Hz) |
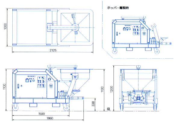
| ホッパ | 構造/漏斗型(上部4角開口)・回転可動(手動:ウォームギヤ) 容量/200L 最低地上高/1,100mm |
| アジテータ | 形式/縦型・スクリュー式(パドル付) モーター/全閉外扇形(屋外型)・AC200V・3相・減速比1/35・400W 制御/インバーター制御・無段変速・正逆運転 |
| 機体寸法 | 全長2,125mm×全幅1,000mm×全高1,100mm ※2 |
| 機体重量 | 980kg(アジテータ(オプション)搭載時は1,035kg) |
※1 輸送配管及びホース径が、2(50)の場合です。
※2 アジテータ(オプション)装着時は、全高1,200mmになります。
機体寸法


